一、高溫消防軸流風機用途與特點
XGZ(HTF)系列消防高溫排煙風機適用于高層建筑、地下建筑及隧道、烘房等通風換氣機或高溫排煙。能在280℃高溫條件下連續運轉30分鐘以上,介質溫度100℃條件下連續運行20小時/次不損壞,是理想的消防必備設施。
型號:XGZ-Ⅰ型為單速高溫排煙風機;XGZ-Ⅱ型為雙速高溫排煙風機,可以一機兩用(即平時通風及高溫排煙);XGZ-Ⅲ型專用于屋頂排放高溫氣體;XGZ-X型為包復式消聲排煙風機,用于對噪聲有特殊要求的通風換氣及高溫排煙的場所。
二、高溫消防軸流風機使用、維護保養
A. 安裝前應認真檢查風機及機殼有否因運輸而損壞變形,檢查螺栓是否緊固,否則應待修復后方可安裝使用。
B. 排煙口與排煙風機應設有聯鎖裝置,當任何一個排煙口開啟時,排煙風機即能自動啟動。
C. 風機啟動前,首先要檢查風機及管道內有無妨礙轉動的物品
D. 安裝后,定期檢查風機各部件,以保證風機能隨時啟動,正常運行。
E. 葉輪旋轉方向必須與風筒上的箭頭標記一致。
XGZ-Ⅰ(HTF-Ⅰ)型消防高溫排煙風機外形尺寸表
.jpg)
XGZ-Ⅱ(HTF-Ⅱ)型消防高溫排煙風機(配用雙速電機)的外形尺寸表
.jpg)
XGZ-Ⅰ(HTF-Ⅰ)型消防高溫排煙風機性能參數表
.jpg)
XGZ-Ⅱ(HTF-Ⅱ)型消防高溫排煙風機性能參數表
.jpg)
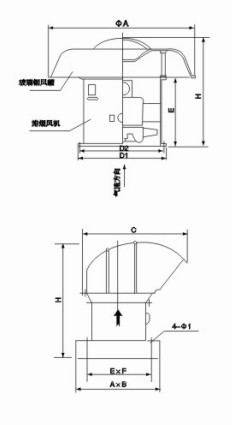
XGZ-Ⅲ(HTF-Ⅲ)屋頂式消防高溫排煙風機外形尺寸表[單速(雙速)型風機性能參數與HTF-Ⅰ(Ⅱ)型同型號一樣]
.jpg)
.jpg)
XGZ-X(HTF-X)型包復式消聲排煙風機外形尺寸表[單速(雙速)型風機性能參數與HTF-Ⅰ(Ⅱ)型同型號一樣]
.jpg)
XGZ-Ⅳ(HTF-Ⅳ)高壓型消防排煙風機
.jpg)
XGZ-Ⅴ(HTF-Ⅴ)低壓型消防排煙風機
.jpg)
XGZ-Ⅵ雙速系列消防排煙專用電機性能參數表
.jpg)
XGZ-Ⅳ、Ⅵ型消防高溫排煙風機外形尺寸表
.jpg)
XGZ-Ⅱ(HTF-Ⅱ)型(雙速)排煙風機電路控制原理圖
.jpg)