一、方形風管止回閥概述
用于風管出口、防止氣流倒流;
風管內風速不小于8m/s;
兩種安裝方式:水平式、垂直式;
二、方形風管止回閥結構特點:
1、閥瓣關閉快速,水錘壓力小;
2、水平管道或垂直管道均可使用,安裝方便;
3、流道通暢、流體阻力小;
4、動作靈敏、密封性能好;
5、閥瓣行程短、關閥沖擊力小;
6、整體結構、簡單緊湊、造型美觀;
7、使用壽命長、可靠性高。
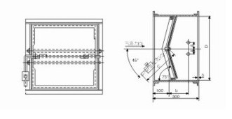
三、方形風管止回閥尺寸規格
.jpg)
.jpg)
注:
1、本閥裝置的目的是風機停轉時防止氣體倒流。
2、本閥裝置范圍,要求風管中風速不能小于8米/秒
3、本圖安裝方式為水平式,垂直式安裝不用重錘,訂貨時應注明安裝方式。