一、密閉式對開多葉風量調節閥概述
密閉式對開多葉調節閥既可作調節用又可作密閉用,適用于有開啟要求的系統上。例如空調系統上的新風閥平排風閥,同樣適用于僅作調節閥用或既有密封要求又有調節要求的系統直,一、二次回風閥等等。
二、密閉式對開多葉風量調節閥的適用
對開多葉風量調節閥,一般用在空調通風系統管道中,用來調節支管的風量,也可用于新風與回風的混合調節。該閥分為手動和電動兩種,電動可以自動控制調節風量與自控系統配套。
三、密閉式對開多葉風量調節閥結構特征
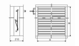
。╨)該調節閥在葉片寬度全統一為四種規格,葉片狀為菱形雙葉片,葉片間采用軟搭接,因此密閉性能良好。
(2)在調節閥連桿側內做30毫米厚的保溫層,保溫材料為聚苯乙烯泡沫塑料,在通風空調系統中如果要求閥門四面保溫時,施工現場只需作其它三面保溫,因而安裝方便、外形美觀。
(3)葉片軸與框架之間的裝配方式采用簡易軸承,從而保證輕巧、靈活、平穩,防止局部卡死。
(4)該調節閥分手動、電動,按所用材料分:鐵板、鍍鋅板、鋁合金板、不銹鋼板四種,閥體結構及規格尺寸相同。
四、密閉式對開多葉風量調節閥的尺寸規格
.jpg)
.jpg)